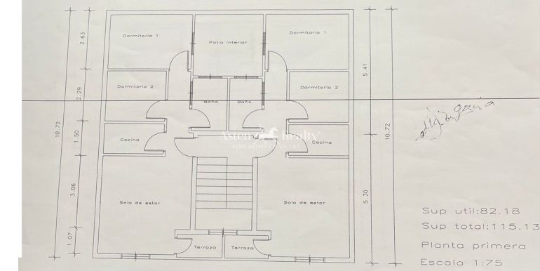
Edificio en venta en El Fraile – ¡Excelente inversión!Se vende edificio completo situado en el centro de El Fraile, junto a todos los servicios y con una ubicación estratégica.El inmueble se distribuye en tres plantas con un total de seis apartamentos (dos por planta).Planta baja: 2 apartamentos de 1 dormitorio, cocina independiente, salón, baño y patio.Primera y segunda planta: 4 apartamentos de 2 dormitorios, cocina independiente, salón y balcón.Todos los apartamentos están actualmente alquilados.Una rentabilidad superior al 6 % anual.Contratos de alquiler con duración de 5 años.Inquilinos solventes y sin morosidad.A 10 minutos caminando de la playa de Las Galletas.A 10 minutos en coche del acceso a la autopista.Una oportunidad ideal para invertir en un edificio con alta rentabilidad en una zona con gran demanda de vivienda! IBI: €720/año Año de construcción: 1998.Referencia Asten Realty: 9661.
ID de la propiedad: 01032403
Edificios – Fraile
650 000.00 € / sale
Property Map






